Homburger Str. in 61118 Bad Vilbel
Objektdaten
STATUS:
IN PLANUNG
Objektart:
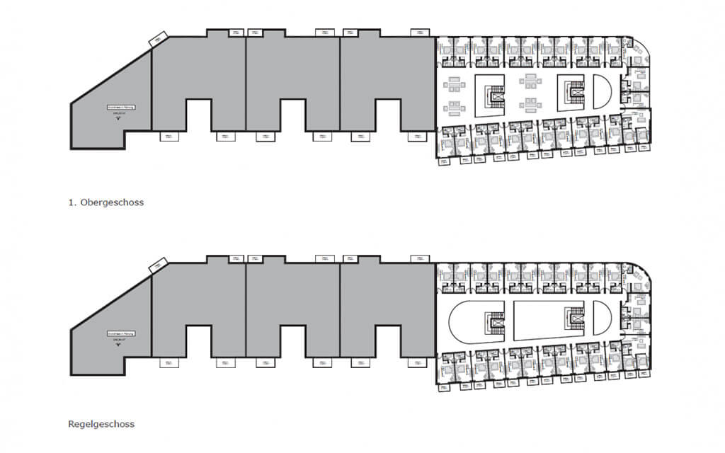
Hotel und Wohnanlage
Zimmer:
2-Zimmer, 3-Zimmer und 4-Zimmer Wohnungen
Wohnfläche:
41,37 m² - 121,85 m²
Gäste-WC:
Ja
Keller:
Ja
Baujahr:
2024
Tiefgaragen / Stellplätze:
163
Zustand:
Neubau
Energieausweis liegt vor:
Nein
Heizungsart:
Gas
Lage:
Homburger Str. in 61118 Bad Vilbel
Verfügbare Wohneinheiten:
Bildergalerie
Objektbeschreibung
Neubau eines Hotels und Wohngebäudes








